APARTAMENTO PV | VERANO
Reforma Integral e Interiorismo de Apartamento
El Puig, Valencia, Spain 2024
Proyecto, estudio calma
Fotografía, Fran Álvarez
Constructora, Dos Aigües
VERANO
Verano, vacaciones y playa. Estas tres palabras inseparables nos traen a la cabeza un sinfín de imágenes de momentos vividos junto al Mediterráneo. Días de playa-piscina-piscina-playa, de siestas bajo la sombrilla, de bicicleta y bocata, de una vida no tan lejana donde no existían las preocupaciones.
Es un paisaje físico y emocional que nos pertenece, en el que todos hemos vivido.
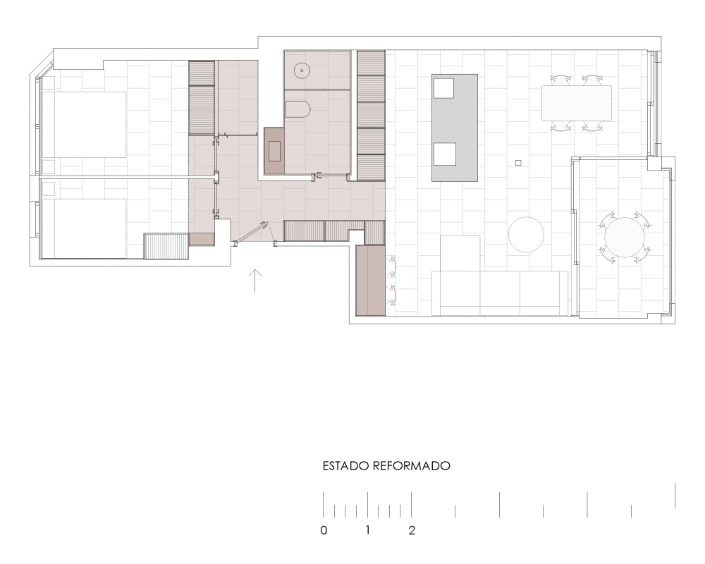
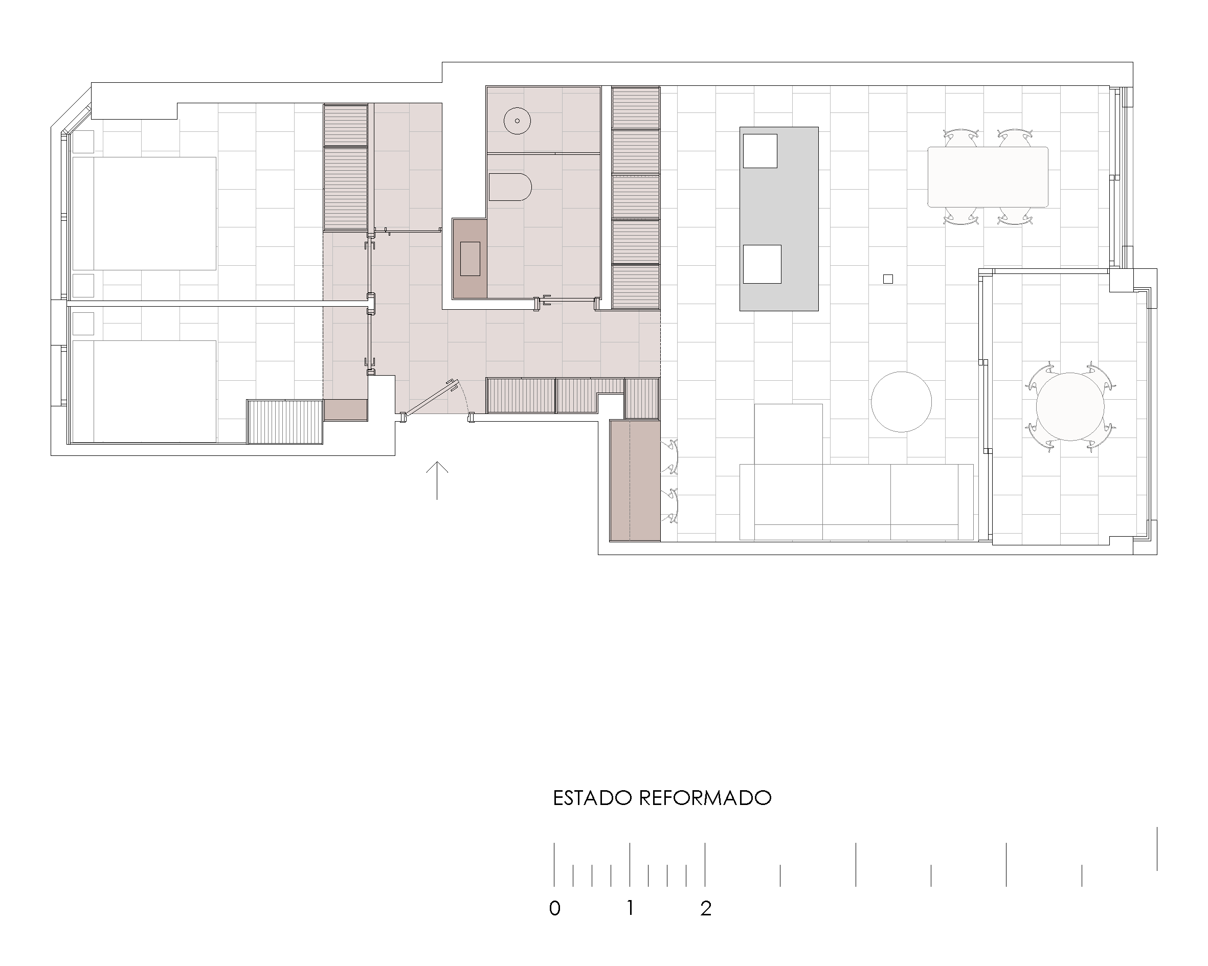
Nuestro proyecto tiene como objetivo principal atrapar ese paisaje, hacerlo omnipresente. Para ello concentramos almacenamiento, zonas húmedas y circulaciones en el núcleo de la vivienda, liberando de esta forma la totalidad de sus fachadas.
La zona de noche, más contenida, disfruta de vistas sobre la marjal; la zona de día, gracias a un cerramiento de cristal de suelo a techo, se abre totalmente hacia el mar. La doble orientación permite que la brisa recorra la vivienda generando una adecuada y agradable ventilación cruzada.
La arquitectura se ordena, se vuelve silenciosa, cediendo el protagonismo a ese paisaje mediterráneo que también es nuestro.





















